賃貸併用住宅の間取りを検討している方の中には以下のような悩みや希望をお持ちの方もいらっしゃるのではないでしょうか。
- 賃貸併用住宅の間取りはどうやって決めればいいんだろう?
- 賃貸併用住宅の間取りを決めるうえで気を付けることはある?
- 狭小地の間取りはどうすればいいんだろう?
- せっかくのマイホームだし、希望通りの間取りにしたい!
賃貸併用住宅は、間取りをどう区切るかによって、住みやすさや収益性が大きく異なるため、時間をかけてじっくりと検討していく必要があります。
そこでこの記事では、間取り図の見方や自宅部分と賃貸部分の間取りを選ぶ際のチェックポイントを解説します。
また、賃貸併用住宅によくある間取り例や実際の間取り例、狭小地での注意点、間取りで後悔していることも紹介していますので、是非参考にしてみてください。
賃貸併用住宅については以下の記事をご覧ください。
賃貸併用住宅の間取り図の見方
ここでは、間取り図の見方について解説します。
間取りの種類
間取りというと1Kや3LDKと書かれていることが多いですが、これらはどんな意味をしているのでしょうか。
以下の表は、それぞれの間取りに表記される数字やアルファベットについてまとめています。
| 間取りの名称 | スペースの内容 |
|---|---|
| 最初の数字 | 居室の数を表しています。3LDKなら、「3つの居室と、LDKの間取り」ということになります。 |
| L:リビング | リビングルームで、居間のことです。 |
| D:ダイニング | リビングとは違い、主に食事をするスペースを示します。 |
| K:キッチン | キッチン、台所です。 |
| 1R:ワンルーム | キッチンと部屋が一体化したもので、必要最低限の設備のみを導入した間取りです。 |
たとえば、1Kと記載があったら、1つの居室+K(キッチン)がある部屋となっており、3LDKと記載があったら、3つの居室+LDK(リビングダイニングキッチン)がある部屋ということになります。
間取り図のアルファベット
間取り図には、さまざまなアルファベットが書かれています。このアルファベットは略語となっており、どんな設備があるのかを表記しています。
| 略語 | 意味 |
|---|---|
| S/SR | サービスルーム(納戸) |
| DEN | 書斎 |
| R | 冷蔵庫置き場 |
| W | 洗濯機置き場 |
| CL | クローゼット |
| WIC | ウォークインクローゼット |
| SIC | シューズインクローゼット |
| MB | メーターボックス |
| PS | パイプスペース |
自宅部分の間取りのチェックポイント
ここでは、自宅部分の間取りのチェックポイントについて解説します。
玄関は賃貸部分と分けられているか
賃貸併用住宅においては、入居者だけでなくオーナー自身のプライバシーの確保が必須です。
具体的には、入居者との接触をできるだけ減らすため、自宅部分と賃貸部分の玄関が分けられているかを必ず確認しておきましょう。
賃貸併用住宅は、アパート経営と異なり、同じ建物にオーナーが住んでいることから、入居者との距離が近くなります。
そのため、玄関の配置や間取りに注意しなければ、オーナーの生活が常に晒されているような状態になってしまいます。
水回りの設備は隣り合わせになっているか
賃貸経営で一番発生しやすいのが騒音問題です。賃貸併用住宅でも、騒音問題は発生しやすいため、賃貸部分と自宅部分の水回りの設備は隣り合わせにしておきましょう。
たとえば、自宅部分の寝室の近くに賃貸部分のお風呂場やトイレがあった場合、賃貸部分の生活音が気になり、よく眠れないということもあります。
こういった事態を避けるためにも、寝室を反対の位置に設置したり、水回りの設備を集めるなどの間取りにすることをおすすめします。
(住宅ローンを使うなら)自宅部分は50%以上になっているか
住宅ローンを利用して、賃貸併用住宅を建てようと考えているのであれば、自宅部分と賃貸部分の延べ床面積を確認しておきましょう。
賃貸併用住宅で住宅ローンが使える条件が「住宅の面積のうち自宅の居住スペースが50%以上であること」となっています。そのため、自宅部分は必ず50%以上になっているかを確認する必要があります。
住宅ローンは、アパートローンに比べて、長期間低金利で借りられるローンであるため、合計の返済額を減らすことが可能です。
建築費用をできるだけ減らしておきたいという方は、必ず金融機関の条件を確認し、それをクリアできる間取りを選びましょう。
賃貸併用住宅は、賃貸経営ですが初期費用を投資用ローンではなく住宅ローンで借り入れることができるのが魅力です。
賃貸併用住宅経営を成功させるためにはオーナー・入居者ともに住み心地の良い間取りの設計にすることがポイントになります。
建築費の見積もりや住宅の設計について、複数の建築会社に相談してみることをおすすめします。日本最大級の比較サイトイエウール土地活用で複数企業から土地活用プランを取り寄せることができます。
\最適な土地活用プランって?/
賃貸部分の間取りのチェックポイント
ここでは、賃貸部分の間取りのチェックポイントについて解説します。
想定した入居者に合った間取りになっているか
賃貸部分の間取りは、想定した入居者のニーズに合っている間取りかどうかを確認しましょう。
たとえば、大学やオフィスが近くにあるような地域で賃貸併用住宅を建てる場合、単身者向けの1Rや1Kなどの間取りが良いでしょう。
また、ファミリー層を入居者として想定している場合、2LDKや3LDKといった余裕のある間取りにするとよいでしょう。
このように、間取りを選ぶときには、住んでもらう入居者を想定しておくことが大切です。
風呂とトイレは別になっているか
少し前に建てられたアパートでは、湯舟・シャワー・トイレが一体となったユニットバスの形が主流でした。
しかし、現在は風呂とトイレが一緒にある物件は、あまり人気がないのが実態です。
そのため、賃貸併用住宅の賃貸部分では、風呂とトイレは別々に設置しましょう。
設備にも注目する
賃貸部分では、間取りだけでなく、設備にも注目する必要があります。
住宅設備が充実していると、入居者が快適に暮らしやすくなり、入居者が見つかりやすくなります。
特に、セキュリティ面が充実したインターホンや宅配ボックスなどの設備が人気となっています。最近では、テレワークや動画を楽しむ人も多いため、無料Wi-Fiがあるのかや回線工事が可能かなど、インターネット周りにも注目です。
また、どの設備を導入するかで迷ったら、入居者を想定して、入居者のニーズに合った設備を導入しましょう。
狭小地に建てるときの間取りの注意点
30坪くらいの狭小地では、通常の賃貸併用住宅を建てるときより間取りや建て方に注意が必要です。
ここでは、30坪くらいの狭小地で賃貸併用住宅を建てる際の注意点について解説します。
3階~4階建てにする
30坪ほどの狭小地に賃貸併用住宅を建てるときには、1フロアの床面積が確保できない分、階数を3階~4階にしてより多くの床面積を確保します。
30坪の土地で3階建てにすれば、自宅部分にで2LDK、賃貸部分で1Rと1LDKの合計3戸の賃貸併用住宅を建てることができます。
ただ、階数を高くする際には土地ごとに定められた建ぺい率と容積率、高さ制限などの規制に注意が必要です。
建ぺい率とは土地の広さに対して建築可能な建築面積の割合を、容積率は土地の面積に対して、建築可能な延べ床面積を指します。
狭小地だと階数を増やして床面積を広げることになりますが、これは容積率の範囲内で行わなければなりません。
エリアごとに建ぺい率と容積率、高さ制限などの規制が定められていますので、事前に確認しておきましょう。
エレベーターは設置しない
3階以上の建物を建築するとしても、割り切ってエレベーターを設置しないことを検討してみましょう。
エレベーターを設置をすると、エレベーターホールやエレベーター本体の分の床面積が削られてしまいます。
狭小地ではただでさえ土地が狭いのに、より自宅部分や賃貸部分の床面積が削られ、設計しづらくなります。
また、建築基準法第三十四条では、高さ31メートル以上の建物には、通常使うエレベーターとは別の非常用エレベーターの設置が義務付けられています。
通常のエレベーターと別に非常用のエレベーターを設置しようとすると、かなりの費用がかかるため、建物の高さは31メートルを超えないよう気を付ける必要があります。
賃貸部分の間取りはワンルーム(1R)にする
狭小地の賃貸併用住宅は床面積を多く確保することが難しいため、賃貸部分の間取りをワンルーム(1R)にして戸数を増やすことをおすすめします。
多くのエリアで、ワンルームタイプはファミリータイプよりも賃貸需要が高いことから、入居者が早く決まりやすくなります。
また、ワンルームタイプでは賃料単価が高くなることや、空室のリスクを軽減することができます。
賃貸部分に空室を発生させず、安定した家賃収入を得るためにも、まずは賃貸部分の間取りをワンルームするかどうかの検討から始めましょう。
住宅ローンにこだわりすぎない
賃貸併用住宅では、自宅部分の床面積を50%以上にすると住宅ローンが使えるという特徴がありますが、狭小地では住宅ローンにこだわりすぎないことも大切です。
狭小地で住宅ローンが使えるような間取りにしてしまうと、賃貸部分が狭くなり、思ったように家賃収入を得ることができない可能性があります。
また、家賃収入が少なければ、実質的なローンの負担も大きくなってしまい、賃貸併用住宅の恩恵を受けられないこともあり得ます。
そのため、賃貸部分を減らしてでも住宅ローンが使える間取りにするなら、戸建て住宅にしてしまった方が良いでしょう。
ビルトインガレージやオーバーハングを検討する
狭小地の賃貸併用住宅では十分な広さの建物を建てられないため、駐車場を設けないことが重要です。
どうしても駐車場がほしい場合は、ビルトインガレージやオーバーハングを検討するようにしましょう。
ビルトインガレージとは、車庫を建物の一部に組み込んでシャッターやドアを設置したものです。
ビルトインガレージは次の要件を満たすことで、容積率が緩和されることも魅力でしょう。
- 外壁のない部分が4m以上続いている
- 柱の間隔が2m以上ある
- 天井の高さが2.1m以上ある
- 地階を除いた階数が1である
あえて出っ張りをつくることで、2階部分の面積を削ることなく、1階部分に駐車スペースを生み出すことができます。

オーバーハングを採用する場合、より強度のある構造をにしなければならないため、建築費が高額になります。
お持ちの土地で賃貸併用住宅を建てるためには複数の建築プランを検討してみることをおすすめします。日本最大級の比較サイトイエウール土地活用なら、土地所在地を入力するだけで簡単に土地活用プランを取り寄せることができます。
\最適な土地活用プランって?/
賃貸併用住宅の間取り例
ここでは、賃貸併用住宅で用いられる間取り例を紹介します。
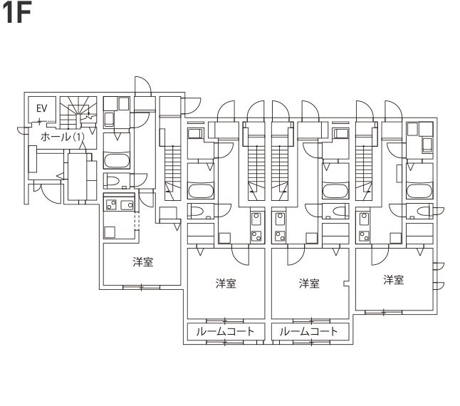
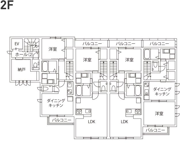
横割りの間取り

横割りの間取りは、自宅部分と賃貸部分をフロアごとに分けた間取りのことです。
2階建ての賃貸併用住宅を建てる場合、自宅部分を2階にするのか、1階にするかで暮らしやすさが異なります。
自宅部分をどのフロアにするのかは、それぞれのメリットとデメリットを確認して決めていきましょう。
自宅部分が2階にある間取り
自宅部分を上のフロア(2階)にすると、賃貸部分との干渉が少なく、オーナーのプライベートの空間を守ることができます。また、階段を利用して上層階に上がるのはオーナーの身になるため、防犯性が高いこともメリットになります。
しかし、下のフロアに賃貸部分があるため、足音や生活音が理由で入居者からクレームが入る可能性もあります。
自宅部分が1階にある間取り
自宅部分を下のフロア(1階)にすると、足音や生活音による入居者への気遣いが不要になります。そのため、子供と一緒に暮らす際には、入居者からの騒音問題に発展することが少ないことがメリットです。
しかし、賃貸部分を上のフロアにしてしまうと、入居者の足音や生活音がうるさく感じてしまう可能性があることを覚えておきましょう。
縦割りの間取り

縦割りの間取りは、建物を左右に区切り、自宅部分と賃貸部分が左右に並んでいる間取りのことです。
建物を左右に区切ることから、1階から最上階まで、それぞれ縦の空間を利用することができます。そのため、横割りで発生する可能性がある生活音の問題が発生しづらいことがメリットです。
しかし、縦割りにすることで室内に階段を設置しなければならないことから、その分室内の面積が減ってしまうことがデメリットになります。
変形してわかれる間取り

建物を左右に区切り、その中でも1Kや1DKに区切ることで、賃貸部分の部屋数を増やすこともできます。
もし、1部屋だけを貸している場合、借り手が見つからなければ家賃収入はゼロになってしまいます。しかし、複数の部屋を貸し出すことで、1部屋空室になっても、家賃収入が途切れることはありません。
このように、賃貸の数を増やすことで、空室のリスクを分散させることができる点がメリットになります。
賃貸の1室を自宅にする間取り

アパートやマンションのような建物を建て、その1室を自宅にするという間取りもあります。
自宅部分は通常の賃貸住宅と変わらない広さになりますが、賃貸物件を増やすことができるため、高い収益性に期待できます。
しかし、自宅部分の面積が横割りや縦割りの間取りに比べて狭くなることから、住宅ローンは利用できないことがほとんどです。
賃貸併用住宅の間取り集
ここでは、ハウスメーカーが提供する賃貸併用住宅の間取りをいくつか紹介します。
縦割りの間取りの事例


ミサワホーム株式会社が提供する賃貸併用住宅「Belle Lead HOME plus」は「あなたの人生をもっとプラスにする住まい」をコンセプトにつくられています。
間取りとしては、縦割りの間取りになっており、自宅部分と賃貸部分が2戸の賃貸併用住宅です。
自宅部分と賃貸部分の玄関がわかれているため、自分と入居者のプライバシーを確保することができます。
引用:ミサワホームHP Belle Lead HOME plusより
横割りの間取りの事例

サンヨーホームズ株式会社が提供する賃貸併用住宅は、3階建ての建物を横割りにしています。
1階・2階には、1LDKと2LDKをそれぞれ2戸ずつ配置し、3階は自宅部分となっています。
自宅部分と賃貸部分の両方とも居住スペースが広く、開放感のある暮らしができるような間取りです。
引用:サンヨーホームズHP より
変形してわかれる間取りの事例



セキスイハイムが提供する賃貸併用住宅「DESIO」は「暮らし心地も、家族の夢も広さ×高さで叶える〝3階建住宅〟」をコンセプトにつくられています。
こちらの間取りの基本は横割りとなっていますが、1階と2階の賃貸部分はそれぞれが階段でつながった物件となっています。そのため、3階が自宅部分、1階・2階の賃貸部分が4戸という配置です。
自宅部分では、LDKを中心に個室を配置することで、建物に凸凹を儲け、南面から光と風を取り込みやすいようになっている間取りです。
引用:セキスイハイムHP 建築実例 より
賃貸併用住宅は、賃貸経営ですが初期費用を投資用ローンではなく住宅ローンで借り入れることができるのが魅力です。
賃貸併用住宅経営を成功させるためにはオーナー・入居者ともに住み心地の良い間取りの設計にすることがポイントになります。
建築費の見積もりや住宅の設計について、複数の建築会社に相談してみることをおすすめします。日本最大級の比較サイトイエウール土地活用で複数企業から土地活用プランを取り寄せることができます。
\最適な土地活用プランって?/
賃貸併用住宅の間取りにおける後悔
賃貸併用住宅を建てるからには間取りで後悔したくないと考えるのは当然のことです。
ここでは、よくある賃貸併用住宅の間取りで後悔するパターンを紹介します。
オーナーが暮らしにくく感じる
賃貸併用住宅の間取りでよくある後悔は、オーナーが暮らしにくく感じることです。
せっかくのマイホームなのに自分たちが暮らしにくく感じてしまっては元も子もありません。
そのため、暮らしにくく感じるような理由を確認して、快適に過ごせるような対策を講じることが大切です。
以下が賃貸併用住宅のオーナーが暮らしにくいなと感じる理由です。
- 自分たちの物音が入居者まで響いてないか気になる
- 入居者から突然クレームが来ることがあり、落ち着かない
- エントランスから自宅の中が一部が見えてしまう
- 玄関付近で入居者と顔を合わせる回数が多い
また、管理会社に委託することで入居者から直接クレームが来る可能性を下げることができます。
入居者が集まらない
賃貸併用住宅のオーナーの中には、入居者が集まらなくて後悔している人も多いようです。
賃貸併用住宅では、賃貸部分の間取りや設備に魅力のない物件を建ててしまうと入居者が集まりにくく、空室が増えてしまいます。
入居者がいなければ「住宅ローンを家賃収入で返済する」という賃貸併用住宅における最大のメリットを使えないため、入居者が魅力的に感じる間取りをつくり、満室経営に近づけることが重要です。
賃貸併用住宅もあくまで賃貸経営であることを常に意識して、立地や賃貸需要をしっかりと確認して間取りや設備を決めていきましょう。
また、集客に強い管理会社を見つけたり、他の物件より魅力のある物件にするといったこと必要になります。
こだわりすぎて売却できない
せっかくのマイホームだからといって、間取りや建て方にこだわりすぎてしまうと、いざ物件を手放すときに後悔する可能性があります。
ライフステージの変化や急な引っ越しにより、その家を空けないといけないタイミングで売却を検討する人もいるでしょう。
その際に、間取りや構造にこだわりすぎてしまうと買い手が現れず、売却できないようなこともあります。
そもそも、不動産投資を始めたい人は、アパートやマンションを探しますし、マイホームがほしい人は戸建てを探します。そのため、賃貸併用住宅を求めている人は少ないです。
また、賃貸併用住宅を求めていても、その建物の間取りや内装が好みでない場合、候補から外れてしまいます。
素早く買い手を見つけるためにも、シンプルな間取りや間取りにして、一般的に好まれるようにしておくことが大切です。
自分も入居者も住みやすい間取りの賃貸併用住宅を建てる
賃貸併用住宅を建てるなら、自身だけではなく、入居者も暮らしやすい間取りを考えることが大切です。
間取りにはさまざまな種類があり、どれにするかによってお互いの生活に干渉があるか、どれくらいの収益が得られるかなどが異なります。
間取りは簡単には変更できないため、建築時点からこだわる必要があります。間取りによって賃貸経営が成功するか、自身が快適に暮らせるかが異なるため、念入りに計画を立ててから賃貸併用住宅を建築しましょう。
記事のおさらい

